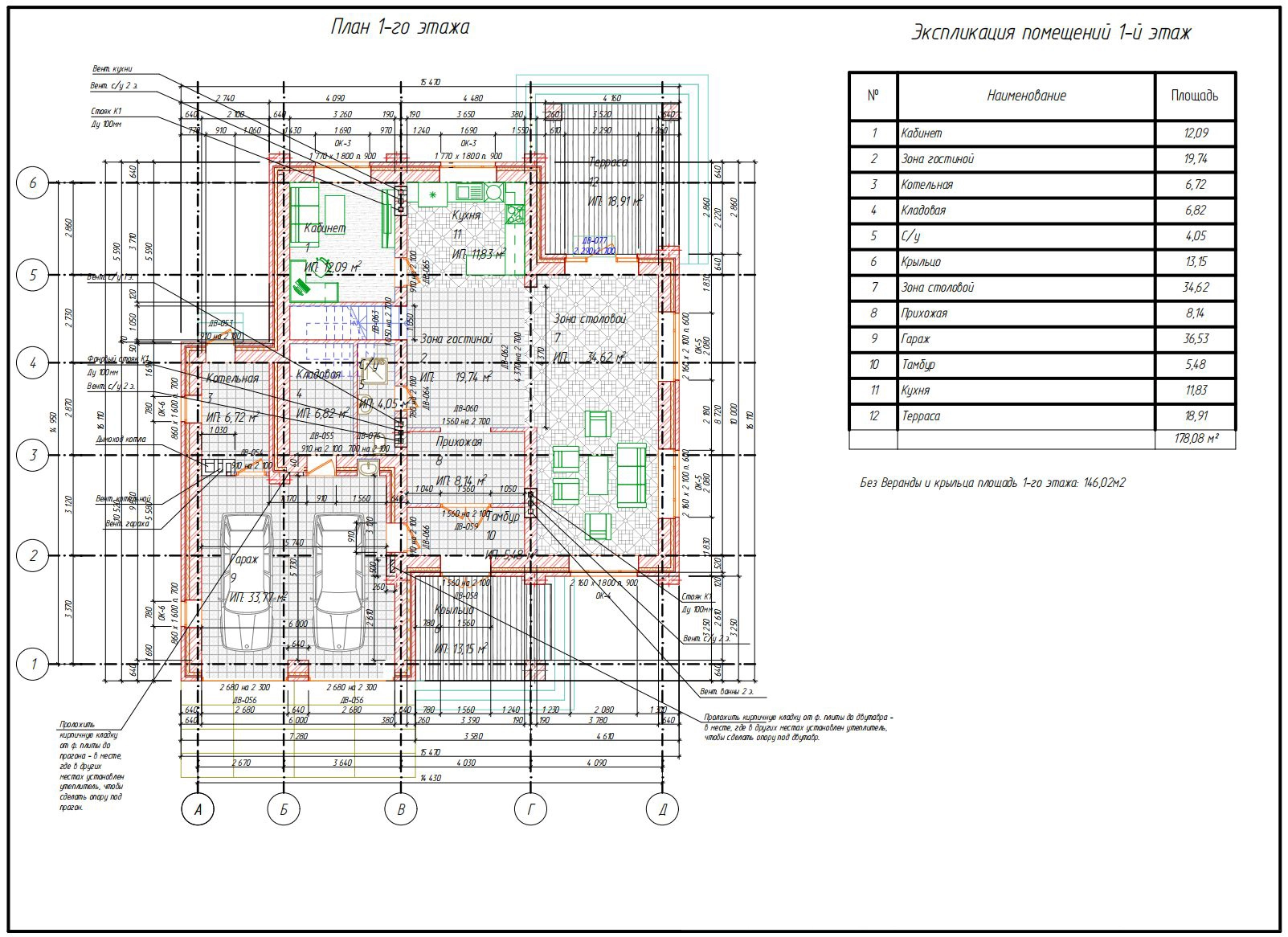
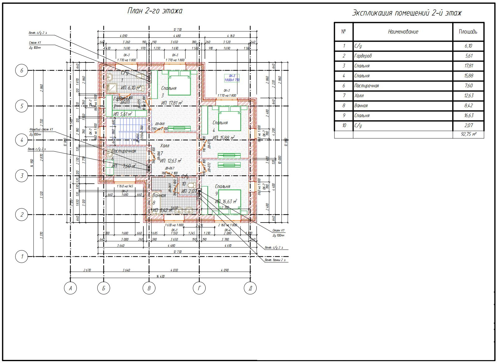
Двухэтажный дом из кирпича с большим количеством помещений, гаражом и террасой.
Фундамент: монолитная фундаментная плита на подготовленном основании. Наружные стены: кирпичная кладка 380 мм; утеплитель 100 мм; воздушный зазор 40мм, облицовочный кирпич - 120мм. Внутренние стены: Кирпичная кладка 380 мм. Перегородки: кирпич силикатный полуторный М 150 и ц/п раствор М100 полщиной 120мм. Перекрытие 1-го этажа - железобетонные пустотные плиты. Стропильная система - из пиломатериалов 1-го сорта. Покрытие кровли: битумная черепица.
Двухэтажный дом из кирпича с большим количеством помещений, гаражом и террасой.












В ООО «Комфортный Дом» Вы сможете заказать детально проработанный проект дома, не вставая со своего удобного дивана.
подробнее
Перед тем, как получить проект дома, наши специалисты создадут для Вас 3D-презентацию.
подробнее
Для нас нет ничего дороже нашей работы, и мы всегда ставим свою репутацию на первое место.
подробнееВсегда рады ответить на ваши вопросы
Адрес
170100, г. Тверь, Бульвар Радищева 33/35 Б.
Телефон
+7 (904) 006-06-73, +7 (920) 152-25-75
Поддержка 24/7 в чатах