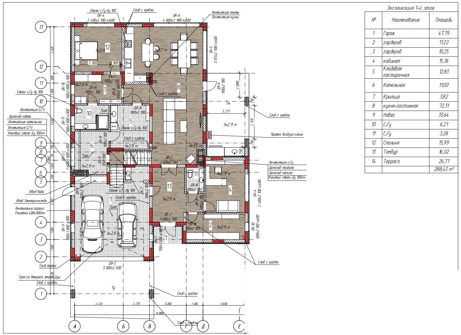
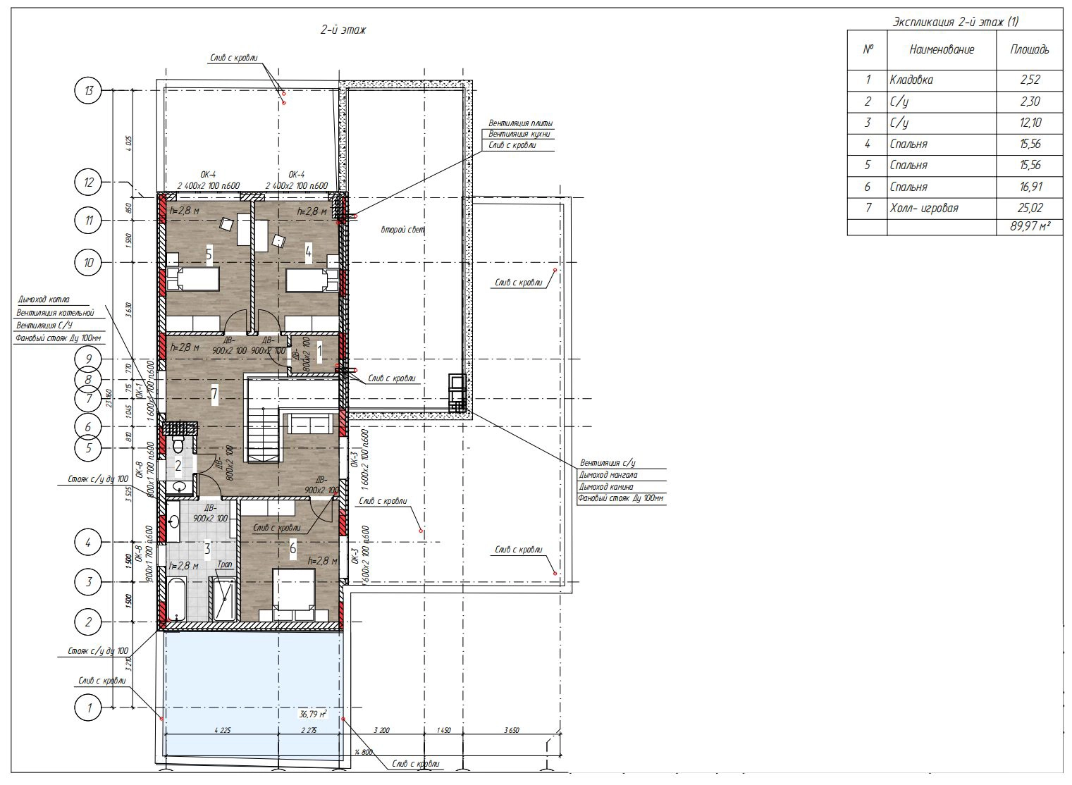
Большой двухэтажный дом из кирпича с просторным гаражом, навесом, террасой.
Наружные стены: - Ж/б каркас (колонны толщиной 250мм, с заполнением кирпичом). Перегородки: Кирпич 120мм. Перекрытие 1-го этажа- монолитное по расчету. Перекрытие 2-го этажа - монолитное по расчету.
Большой кирпичный дом с пространством различного назначения. Просторный гараж, навес, терраса.






















В ООО «Комфортный Дом» Вы сможете заказать детально проработанный проект дома, не вставая со своего удобного дивана.
подробнее
Перед тем, как получить проект дома, наши специалисты создадут для Вас 3D-презентацию.
подробнее
Для нас нет ничего дороже нашей работы, и мы всегда ставим свою репутацию на первое место.
подробнееВсегда рады ответить на ваши вопросы
Адрес
170100, г. Тверь, Бульвар Радищева 33/35 Б.
Телефон
+7 (904) 006-06-73, +7 (920) 152-25-75
Поддержка 24/7 в чатах