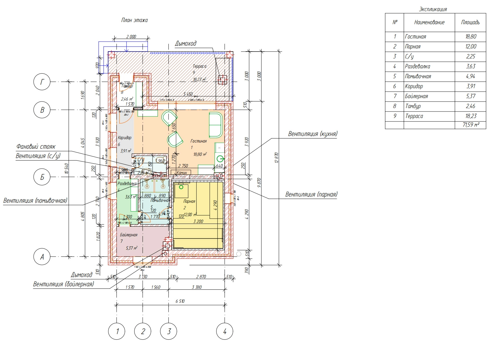
Комфортная баня с большой террасой и дополнительными помещениями.
Фундамент: монолитная фундаментная плита толщиной 300мм. Наружные стены: силикатный кирпич 250х120х88 М150 и ц/п раствор М100, утеплитель 100мм, воздушный зазор 40мм, облицовочный кирпич - 120мм. Внутренние стены: силикатный кирпич 250х120х88 М150 и ц/п раствор М100. Перегородки: кирпич силикатный полуторныйтолщиной 120мм М 150 и ц/п раствор М1007.
Комфортная баня с террасой и дополнительными помещениями. Большая зона для отдыха, удобное расположение помещений.

















В ООО «Комфортный Дом» Вы сможете заказать детально проработанный проект дома, не вставая со своего удобного дивана.
подробнее
Перед тем, как получить проект дома, наши специалисты создадут для Вас 3D-презентацию.
подробнее
Для нас нет ничего дороже нашей работы, и мы всегда ставим свою репутацию на первое место.
подробнееВсегда рады ответить на ваши вопросы
Адрес
170100, г. Тверь, Бульвар Радищева 33/35 Б.
Телефон
+7 (904) 006-06-73, +7 (920) 152-25-75
Поддержка 24/7 в чатах